京都岡崎 平安神宮近くのヴィンテージマンション
京都グランドハイツ
- 事業規模
- 区分マンション22㎡
- 事業体制
- 事業主
- 所在
- 京都府京都市左京区聖護院円頓美町47-5
- 交通
- 京阪鴨東線「神宮丸太町」駅 徒歩11分
白く整えられた外観は、どこか懐かしさを残しながらも清潔感に溢れています。
丁寧に管理され、時を経てもなお美しいマンション全体は、住む人の暮らしを静かに支えてきた歴史を感じさせます。
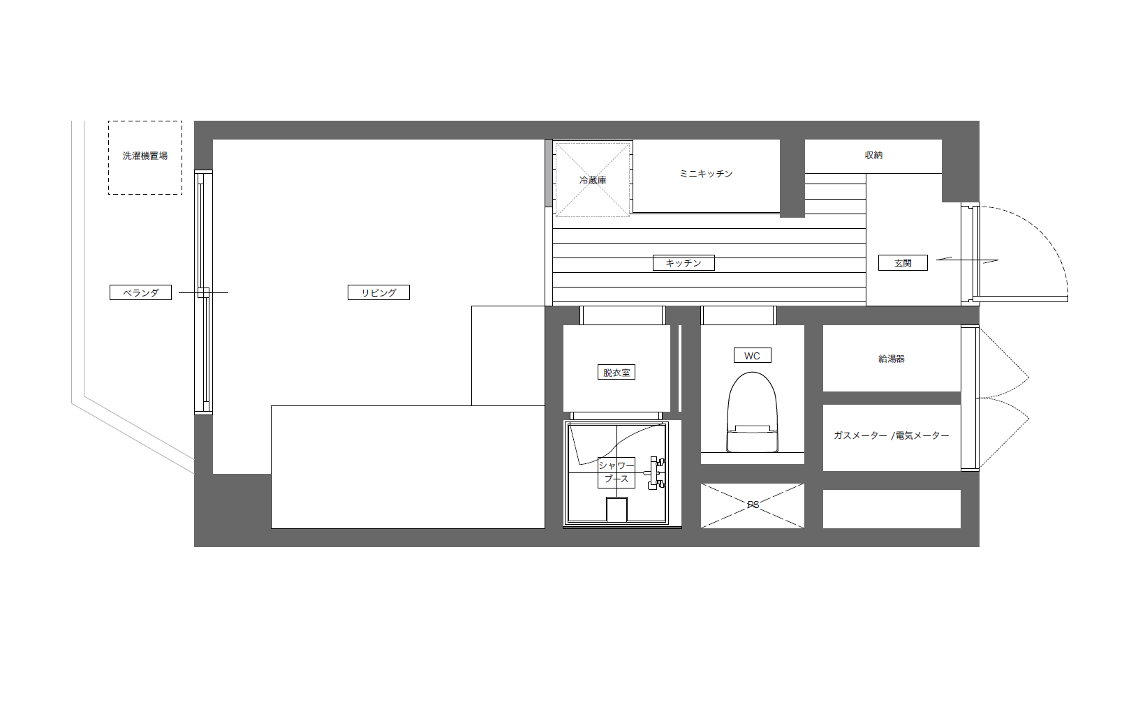
今回Whateverがリノベーションしたのは、4階の一番奥にあるワンルーム。
玄関を開けると白壁とモルタルのコントラストが美しい空間が広がります。
光が柔らかく反射する天井までの白壁。
そして、あえて残したモルタルのざらりとした質感。
新しさと古さが心地よく溶け合い、この部屋にしかない表情を生み出しています。















