- HOME
- COLUMN
- GOSHOHIGASHI
- マンスリープラン | 京都で暮らすように滞在する【 Whatever GOSHOHIGASHI 】
COLUMN
マンスリープラン | 京都で暮らすように滞在する【 Whatever GOSHOHIGASHI 】
2025.12.5
京都で暮らすように滞在する町家



バーチャルツアーはこちら
360°View https://nodalview.com/s/2tirnohND2OPw6dnqeiX1q
日常という贅沢な体験


設備
| 家電 | テレビ / 冷蔵庫 / 炊飯器 / 電気ケトル / オーブントースター / 電子レンジ / ドライヤー / 洗濯機 / アイロン / アイロン台 / 掃除機 / エアコン / 扇風機 等 |
| 家具 | ダイニングセット 等 |
| 備品 | 掃除用具/キッチン用品/食器類 等 |
| インターネット | WiFi(無料) |
物件概要
| 賃 料 | 280,000円 / 一ヶ月(30日) |
|---|---|
| 公共料金 | 賃料に含む |
| 種 類 | 貸家居住用 |
| 敷金 / 礼金 | 敷金 50,000円 / 礼金 無 |
| 契約の種類 | 一時使用目的建物賃貸借契約 |
| 最短契約日数 | 一ヶ月(30日) |
| 定員 | 3人(ベッド2台 / ソファベッド1台) |
| 所在地 | 京都市上京区今出川通寺町東入米屋町290番地 |
| 交 通 | 京阪電車「出町柳」駅徒歩6分 |
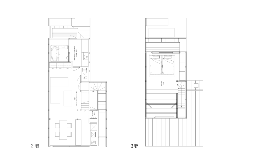
| 間 取 | 1LDK |
| 駐車場 | 無 |
| 駐輪場 | 有 (レンタルサイクル 2台有) |
| 喫煙 | 建物内すべての場所で不可 |
| ペット | 不可 |
| 楽器演奏 | 不可 |
| 建物使用面積 | 延べ: 72.85m² |
| 建物構造 | 木造3階建 |
| 築年数 | 1945年(築80年) |
| 入居可能日時 | CONTACT または075-706-1133よりお問い合わせください ※ お問い合わせ内容の箇所に「マンスリー町家の件」とご記入お願いします。 |
| 備 考 | 一ヶ月未満の契約不可 |
| 取引態様 | 貸主 |
| 担当者 | 佐名木 |
所在地
京都市上京区今出川通寺町東入米屋町290番地
Google マップ https://maps.app.goo.gl/MxrUpCsKmyCrwT7p8
交通:京阪電車「出町柳」駅徒歩6分
お問い合わせはお気軽に下記までお願いいたします。 ワットエバー株式会社 電話: 075-706-1133 メール: https://whatever-produce.com/contact ※ お問い合わせ内容の箇所に「マンスリー町家の件」とご記入お願いします。 営業時間: 平日 9:00-17:00 |

